KM Land Surveys
Professional Land Surveyors , Regional & Town Planners
Professional Land Surveyors
Coordinating the Future
We are a team of Professional land Surveyors and we Assist with the Planning of land development, Submitting of diagrams to the Surveyor-General for approval and with registration procedures, Fieldwork, Cadastral Surveys, Topographical/Engineering Surveys and Sectional Titles to name a few.
We are based in Howick and have offices in Estcourt and Durban
What We Do!
Land Surveys
Sectional Title
Topographic Surveys
Hydrographic Surveys
Drafting
Cadastral Surveys
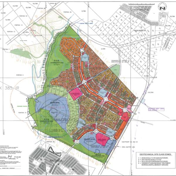
Town Planning
Mining Surveys
Our Recent Projects
Get in touch with us now for a free Consultation
Our primary objective is to provide land survey services to the communities and companies in the efficient application of ethics and morals.
